© 2017 - 2026 Alle Rechte vorbehalten
Siam CAD Architektur und Zeichenbüro
Hochbau, Bestandsmodellierung und CAD-Dienstleistungen Wir agieren als Ihre skalierbare Produktionsabteilung für Architektur- und Ingenieurbüros im DACH-Raum. Unser Fokus liegt auf der technischen Umsetzung: Wir verwandeln Ihre Entwürfe, Skizzen oder Punktwolken in intelligente Datenmodelle – effizient, software-gestützt und strikt nach Ihren Vorgaben. 1. BIM Services & Scan-to-BIM (Revit) Effizienz durch Automatisierung. Unsere BIM-Spezialisten nutzen fortschrittliche Methoden wie visuelles Skripting (Dynamo), um repetitive Aufgaben bei der Modellierung zu automatisieren. Das bedeutet für Sie: Schnellere Ergebnisse und konsistente Datenqualität bei Großprojekten. Unsere Leistungen: Scan-to-BIM: Erstellung verformungsgerechter 3D-Modelle direkt aus Ihrer Punktwolke (Laserscan). Modellierung (2D zu 3D): Übertrag von Bestandsplänen in native Revit-Modelle (LOD 100 – 400). Datenmanagement: Strukturierte Attributierung von Bauteilen nach Ihren LOI-Vorgaben. Familienbau: Erstellung parametrischer Revit-Bauteile. Unser Prozess: Wir arbeiten nach dem "Black-Box-Prinzip": Sie definieren die Anforderungen (LOD, Attribute, Export-Formate) schriftlich über unser Anforderungsformular – wir liefern das geprüfte Modell.
Skriptbasierte Datenverarbeitung für maximale Effizienz
REVIT
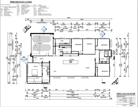
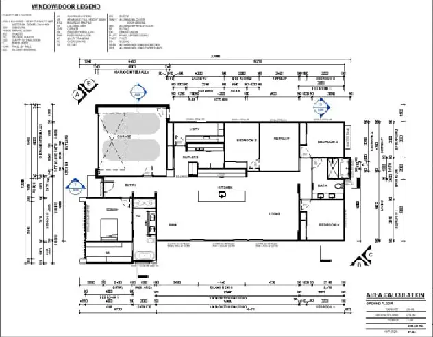
2. Klassische CAD-Architektur (2D) Zuverlässige Entlastung für Ihr Zeichenbüro. Bestandsaufnahme: Digitalisierung alter Papierpläne in saubere CAD-Dateien (DWG/DXF). Ausführungsplanung: Detaillierung von Grundrissen, Schnitten und Ansichten. Planlayout: Vorbereitung von Bauantrags- und Werkplänen nach Ihren Layer-Standards.
ARCHITEKTUR & BIM-ENGINEERING
3. Software-Kompetenz Wir arbeiten nahtlos in Ihrer Systemumgebung:
© 2026 Alle Rechte vorbehalten
ARCHITEKTUR & BIM-ENGINEERING
Hochbau, Bestandsmodellierung und CAD-Dienstleistungen Wir agieren als Ihre skalierbare Produktionsabteilung für Architektur- und Ingenieurbüros im DACH-Raum. Unser Fokus liegt auf der technischen Umsetzung: Wir verwandeln Ihre Entwürfe, Skizzen oder Punktwolken in intelligente Datenmodelle effizient, software-gestützt und strikt nach Ihren Vorgaben. 1. BIM Services & Scan-to-BIM (Revit) Effizienz durch Automatisierung Unsere BIM-Spezialisten nutzen fortschrittliche Methoden wie visuelles Skripting (Dynamo), um repetitive Aufgaben bei der Modellierung zu automatisieren. Das bedeutet für Sie: Schnellere Ergebnisse und konsistente Datenqualität bei Großprojekten. Unsere Leistungen: Scan-to-BIM: Erstellung verformungsgerechter 3D-Modelle direkt aus Ihrer Punktwolke (Laserscan). Modellierung (2D zu 3D): Übertrag von Bestandsplänen in native Revit-Modelle (LOD 100 – 400). Datenmanagement: Strukturierte Attributierung von Bauteilen nach Ihren LOI-Vorgaben. Familienbau: Erstellung parametrischer Revit- Bauteile. Unser Prozess: Wir arbeiten nach dem "Black-Box-Prinzip": Sie definieren die Anforderungen (LOD, Attribute, Export-Formate) schriftlich über unser Anforderungsformular wir liefern das geprüfte Modell.
Haben Sie ein Projekt? Haben Sie ein Projekt?
Skriptbasierte Datenverarbeitung für maximale Effizienz
2. Klassische CAD-Architektur (2D) Zuverlässige Entlastung für Ihr Zeichenbüro. Bestandsaufnahme: Digitalisierung alter Papierpläne in saubere CAD-Dateien (DWG/DXF). Ausführungsplanung: Detaillierung von Grundrissen, Schnitten und Ansichten. Planlayout: Vorbereitung von Bauantrags- und Werkplänen nach Ihren Layer-Standards.
3. Software-Kompetenz Wir arbeiten nahtlos in Ihrer Systemumgebung:
REVIT